2LDK/7階/69.49m2 - 1
2LDK/7階/69.49m2 - 2
2LDK/7階/69.49m2 - 3
2LDK/7階/69.49m2 - 4
2LDK/7階/69.49m2 - 5
+8

2LDK/7階/69.49m2

東京都港区六本木5

物件概要

賃料54万円
管理費25000円
敷金-
礼金54万円
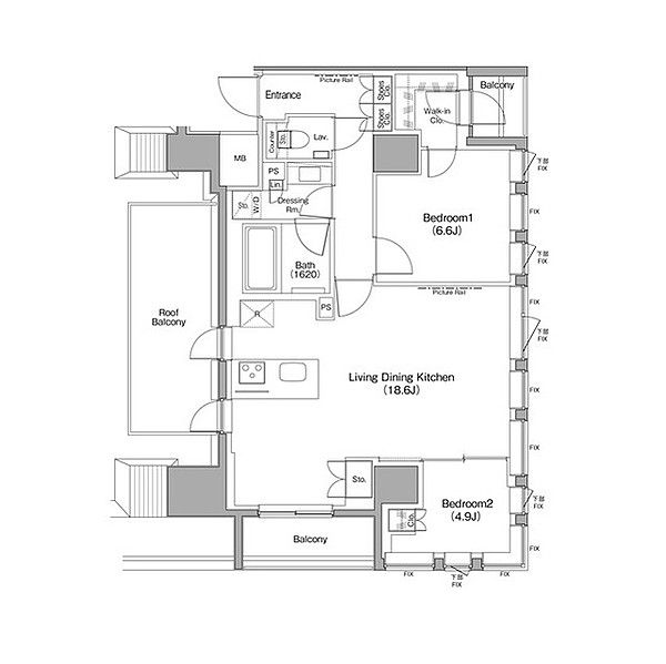
間取り2LDK
専有面積69.49m
所在階-
築年数築5年
建物階数-
住所東京都港区六本木5

アクセス

都営大江戸線/麻布十番駅 歩4分
東京メトロ日比谷線/六本木駅 歩12分
東京メトロ南北線/六本木一丁目駅 歩12分

月額賃料

54万円

管理費 25000円

54万円

間取り

2LDK

面積

69.49m

築年数

築5年

-

この物件について問い合わせるこの建物の空室一覧(60室)

ID: ts-942

港区の類似物件