ザ・パークハビオ恵比寿プレイス - 1
ザ・パークハビオ恵比寿プレイス - 2
ザ・パークハビオ恵比寿プレイス - 3
ザ・パークハビオ恵比寿プレイス - 4
ザ・パークハビオ恵比寿プレイス - 5
+12

ザ・パークハビオ恵比寿プレイス

東京都渋谷区恵比寿3

物件概要

賃料35.8万円
管理費15000円
敷金-
礼金35.8万円
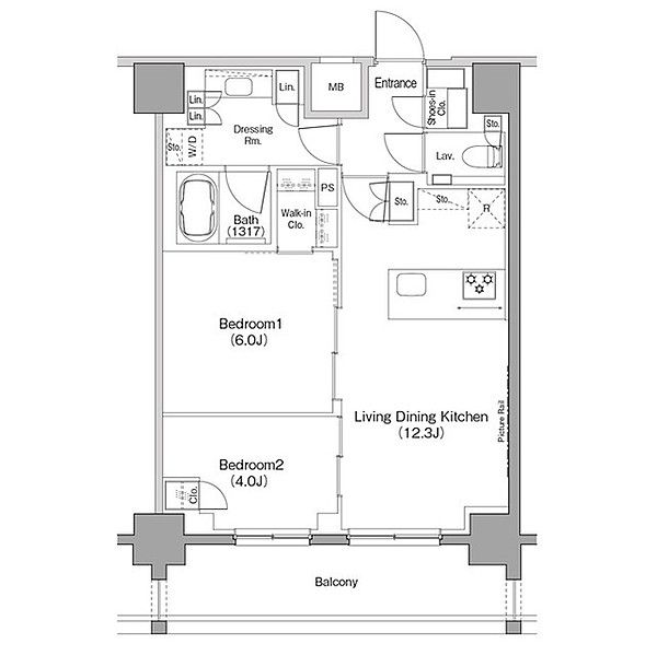
間取り2LDK
専有面積54.41m
所在階-
築年数築8年
建物階数-
住所東京都渋谷区恵比寿3

アクセス

JR山手線/恵比寿駅 歩9分
東京メトロ日比谷線/広尾駅 歩12分
東京メトロ南北線/白金台駅 歩16分

月額賃料

35.8万円

管理費 15000円

35.8万円

間取り

2LDK

面積

54.41m

築年数

築8年

-

この物件について問い合わせるこの建物の空室一覧(10室)

ID: ts-899

渋谷区の類似物件