ザ・パークハビオSOHO代々木公園 SOHO賃貸 外観・室内写真 1/16枚
ザ・パークハビオSOHO代々木公園 SOHO賃貸 写真2/16枚
ザ・パークハビオSOHO代々木公園 SOHO賃貸 写真3/16枚
ザ・パークハビオSOHO代々木公園 SOHO賃貸 写真4/16枚
ザ・パークハビオSOHO代々木公園 SOHO賃貸 写真5/16枚
+11

ザ・パークハビオSOHO代々木公園

東京都渋谷区代々木5

物件概要

賃料23.8万円
管理費25000円
敷金-
礼金23.8万円
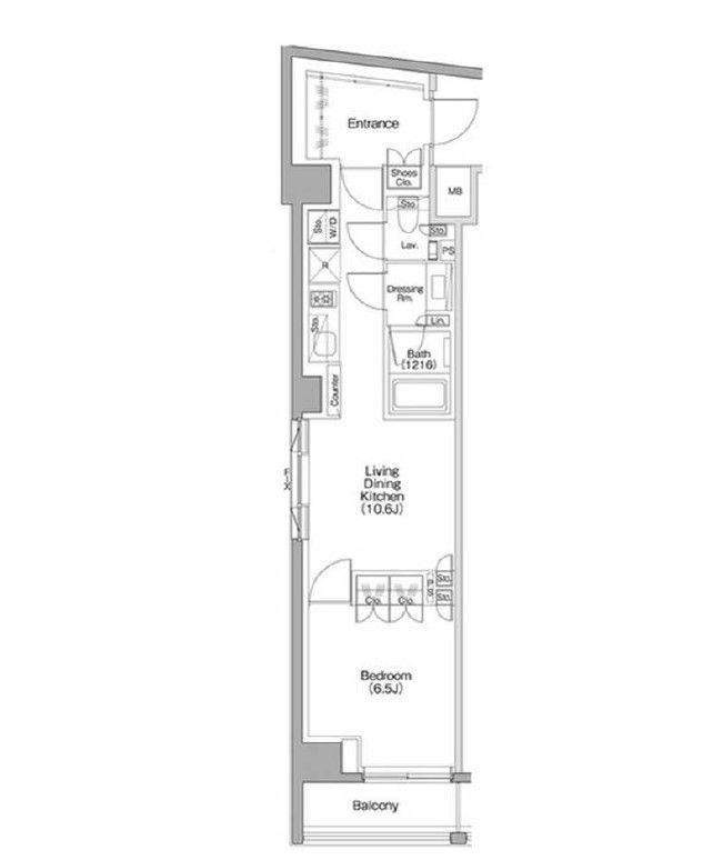
間取り1LDK
専有面積42.69m
所在階-
築年数築4年
建物階数-
住所東京都渋谷区代々木5

アクセス

小田急線/参宮橋駅 歩4分
小田急線/代々木八幡駅 歩11分
京王新線/初台駅 歩12分

月額賃料

23.8万円

管理費 25000円

23.8万円

間取り

1LDK

面積

42.69m

築年数

築4年

-

この物件について問い合わせるこの建物の空室一覧(36室)

ID: ts-712

渋谷区の類似物件